产品详情
| 产品介绍 |
HXM1型系列PZ30照明配电箱是我公司***具市场性的产品,完全符合GB7251.3等国家标准。外形美观、安全可靠,广泛用于工厂、宾馆、商场、住宅等各类场所。
PZ30配电箱壳体采用1.2mm厚优质镀锌钢板折弯点焊组成,喷涂色彩美观的粉末涂料,配用观察箱内元件的透明面盖,造型美观大方。由于它的完美设计和很小的外形尺寸,配电箱可以很容易地安装在靠近各自的负载中心和主要负载的地方。
PZ30配电箱壳体可安装ABB、西门子、海格、施耐德、金钟默勒等系列的微型断路器,安装导轨及元件与壳体之间采用独特的连接方式(他们能满足1~2根导轨的安装,每根导轨可安装10~18个模数)缩小配电箱的体积,降低成本。
照明配电箱的主断路器的下端一般采用汇流排链接,汇流排由本公司提供,但客户需提供每个箱子的系统图,如果客户没有提供线路图,则下端的连接线由客户自备,配电箱内配有输出回路——对应的中性线端子和接地保护端子。
PZ30照明配电箱壳体标准规格分别为10P、12P、15P、18P、20P、24P、30P、36P、40P,每单极开关占一位,在此范围以外按非标制作。
| 技术参数 |
额定电压:~380V/~220V
分段能力:10KA
额定电流:≤63A
防护等级:IP30
| 使用环境 |
HXM1配电箱安装地点海拔不超过2500米;
周围介质温度为-20℃~+40℃;
空气相对湿度年平均不大于90%;
无剧烈震动,冲击和颠簸的场所;
无爆炸危险场所,且介质中无足以腐蚀5金属和破坏绝缘的气体和导电物体;
| 结构特性 |


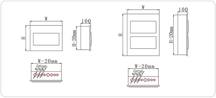
| 箱体示意图 |


